LD-6000系列开关状态综合指示仪式根据当前中压系统开关柜技术发展而开发设计地一种新型地多功能、智能化模拟动态指示装置.它集一次回路模拟图、开关状态、断路器位置、接地闸刀位置、弹簧储能状态、高压带电指示、高压带电闭锁以及自动加热除湿控制、温度控制、加热器故障指示等多功能于一体,这些指示功能可分可合,用户可根据需要选择,只要指定不同的订货型号并提供一次方案图即可。它可根据用户需要加入回路电流量、电压值、开关分合闸次数、温度、湿度等数字显示功能,还可加入RS485通讯接口,给计算机监控网络提供遥控、遥信数据。该产品以一体化布局配套装置于开关柜,将简化开关柜的面板结构设计,美化开关柜的面板布局,完善开关状态指示功能和安全性能。
LD-6000系列开关状态综合指示仪的应用,可取代现有的一次回路模拟指示牌、电磁式开关状态指示器、接地指示器、带电(闭锁)指示器、自动加热除湿、温度控制器、加热器故障检测器等多种控制、指示装置。
(定货时可参考下列型号与功能来确定定货型号,如有特殊要求,定货时另行说明)

使用环境:-10℃~50℃ ≤95%RH 存贮环境:-20℃~60℃ ≤95%RH
抗电强度:外壳与端子间≥AC 2000V 绝缘性能:外壳与端子间≥100MΩ
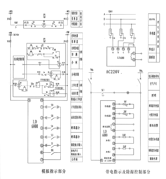
• 模拟指示部分
工作电源:DC48V、110V、220V或AC220V(由用户订货时指定)
工作电流:≤30mA
断路器状态指示:断路分、合闸,无源触电输入
断路器合闸时,合闸触电闭合,红色垂直模拟条发光
断路器分闸时,分闸触电闭合,绿色模拟条发光
断路器位置指示:无源触点输入
工作位置触点闭合时,红色垂直模拟条发光,指示断路器处于工作位置
试验位置触点闭合时,绿色水平模拟条发光,指示断路器处于试验位置
断电时,红、绿发光条均不亮指示断电状态
接地闸刀位置指示:无源触点输入闭合,红色垂直模拟条亮,表示接地合闸
无源触点输入闭合,红色垂直模拟条亮,表示接地合闸
弹簧储能指示:无源触点输入闭合,红色弹簧符号亮,表示已储能
无源触点输入断开,红色弹簧符号亮,表示未储能
注:①以上节点信号均来自于断路器的辅助触点,接地闸刀可用行程开关触点;
②失电状态所有的发光指示均不亮。
• 高压带电指示部分
LED启辉电压(kV):额定相电压×0.15~0.65
强制闭锁启控电压(kV):额定相电压×0.65
• 加热除温控制部分(订货时由用户选择)
加热器电源:AC220V
湿度传感器:1路或2路
控制方式:任何一路传感器感湿,与其对应的加热器启动,加热指示灯点亮
除湿控制:温度≥93%RH或将形成凝露时加热投入
温度<75%RH,凝露解除时加热退出,加热指示灯灭
加热输出继电器触点功率:AC 220V/6A(每一路)
• 温度控制部分(控温范围在订货时可由用户选择,不指定时按下列指标供货)
低温加热:≤5℃时,启动加热;≥13℃时,停止加热
高温排风:≥40℃时,启动排风;≤35℃时,停止排风 • 断线报警:任何一路加热器发生断线,不能正常加热时,报警指示灯亮,报警输出触点闭合。(判断哪一路加热器故障时,只需将加热器断开一次,用万用表量其阻值呈开路状态,立即可知故障所在。)

LD6000C型装入断路器室门上的结构示意图,其它A、D型一般装入二次仪表室门

针对如中置柜、手车柜、箱式柜、环网柜等等开关设备不同的大小和配置要求,LD6000产品有A、C、D三个型号的外壳,用户可根据下列情况选择不同的外形和安装方式。
1.LD6000A型外壳,适用于仪表室面板布局比较宽松且需功能较多的场合。因内部体积比其它型号大写,故可集中一些如带电指示、温度、温度控制等综合功能、布局合理、紧凑。
2.当仪表室门上位置已无余地时,可选用LD6000C型外壳,可将其它安装于电柜的中门上。由于装入深度仅二公分多,且插拔式端子从侧面接线,保证不会碰到中门内的断路器,装入中门后在后面板装一防爆罩,同时将线缆封闭,以确定符合五防要求。这种安装方式,可适用于各种配置的开关柜。
3. LD6000D型是一种小体积、动态模拟指示装置。由于它小巧美观,适用安装于位置紧凑、柜体较小的场合。
1.LD6000A型均是嵌入式结构。只需在面板上开123×183mm矩形孔,再将其推入到面板的开孔中用螺丝紧固即可。
2.LD6000C型为超薄型结构,适用于中门(断路器室)安装。先在中门上开123×183mm矩形孔,将其装入,然后用四个螺钉紧固即可,插拔式侧面可引出线可用金属罩封闭或用尼龙套管隔离。
3.LD6000D型是嵌入式结构,只需在面板上开152×76mm的孔,再将其推入面板的开孔中用紧固件固定即可。
4.按端子的配线功能接线,接好并校对准确后,方可通上电源。
5.将各开关量输入端短接一下,观察对应功能的指示是否发光正常或熄灭。
6.有自动除湿控制功能的,对传感器模拟加湿,模拟凝露条件,加热指示灯应点亮,与其对应的加热器控制端应有AV220V输出。同时,在有加热器启动的条件下,如果某一端子未加热器时,加热故障灯点亮,故障报警触点闭合输出。接入加热器后故障报警接解除,说明自动加热控制功能正常。
7.带电指示器的各输入端分别接上对应的高压带电指示传感器,高压电试验时,带电指示灯亮,有闭锁功能时闭锁解除灯灭,闭锁有效;高压断开后,带电指示灯灭,闭锁解除灯亮,闭锁解除。(无工作电源时,闭锁有效)

|